Standardized homes 規格住宅

規格住宅
  1. HOME
  2. 規格住宅

今も将来も快適に暮らせる、
ミライ型規格住宅。
So-Standard

人気のプランから選ぶ、新しい家づくり。
プラン決定から着工までがスピーディ。
設計コストを抑えながら、
断熱等級6を誇る高い性能と充実の設備を実現しました。

「総合設計」がご提案する
新しい住まいのスタンダード

  • プロが選んだ使いやすいプラン

    プロが選んだ使いやすいプラン

    人気のプランからお選びいただくため、ゼロから設計を考える必要がありません。プラン決定から着工まで、無駄な時間をなくし最速で理想のマイホームが実現します。

  • 納得のコストパフォーマンス

    納得のコストパフォーマンス

    設計図書を作成する人件費などを大幅に削減。
    高性能な住宅を、お求めやすい価格でご提供することに成功しました。

  • 妥協しない住宅性能

    妥協しない住宅性能

    規格住宅とはいえ、性能に妥協はありません。Ua値0.34以下を基準とし、全棟トリプルガラス。全棟ZEH Oriented仕様。快適で経済的な暮らしをお約束します。

Home Plans 商品プラン

あなたのライフスタイルに
合う家が、きっと見つかる
「So-Standard」の商品プラン

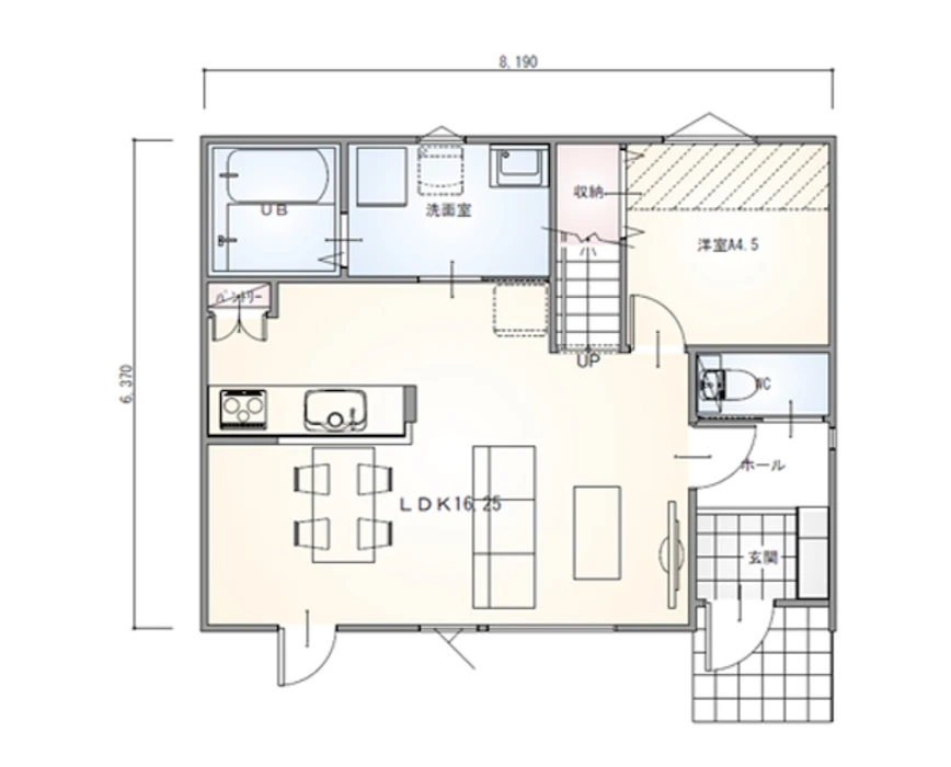
Single-Story Plan 平屋プラン

2128

2,023万円
2LDK / 約21.28坪
2128

2329

2,114万円
2LDK / 約23.29坪
2329

2429

2,138万円
3LDK / 約24.29坪
2429

2505

2,184万円
3LDK / 約25.05坪
2505

2554

2,234万円
3LDK / 約25.54坪
2554

2580a

2,244万円
3LDK / 約25.80坪_a
2580a

2580b

2,247万円
3LDK / 約25.80坪_b
2580b

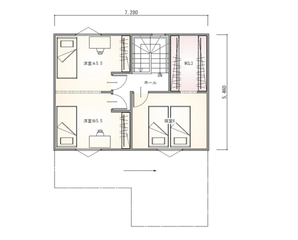
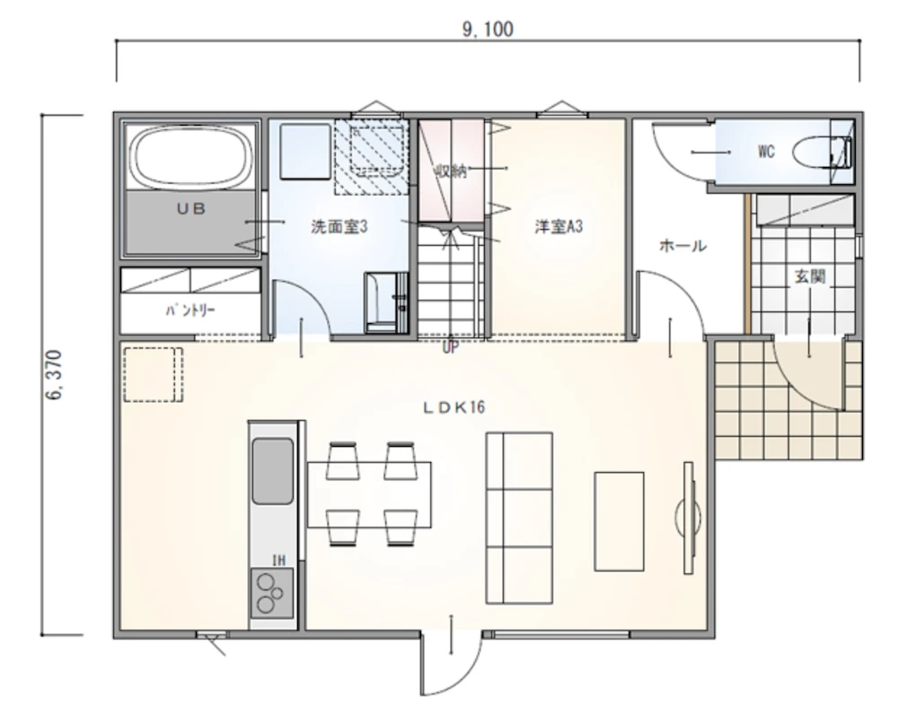
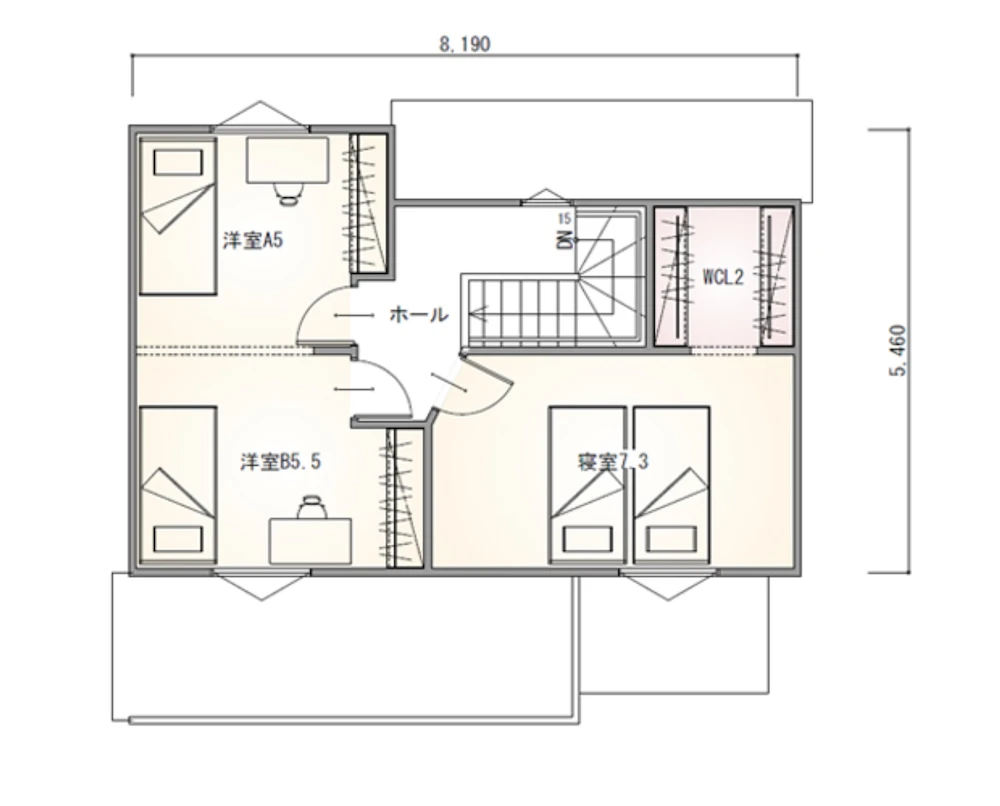
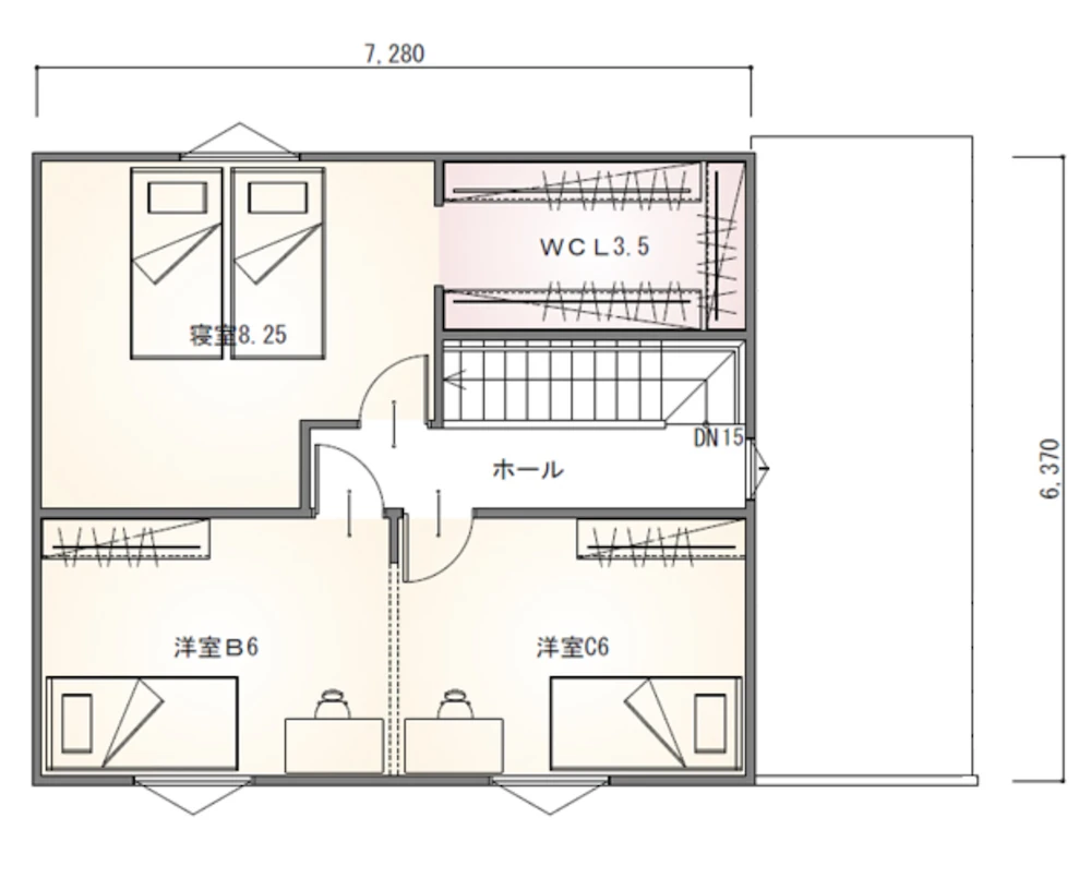
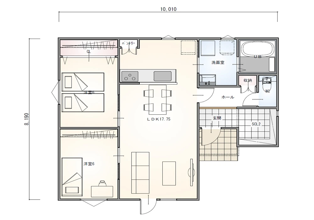
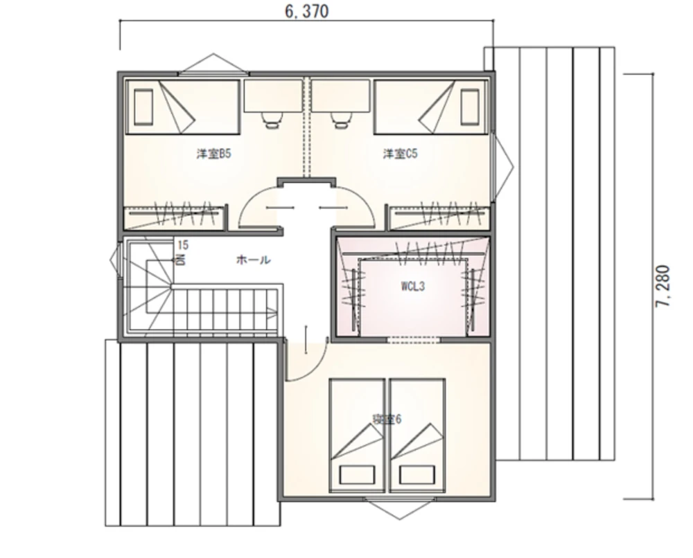
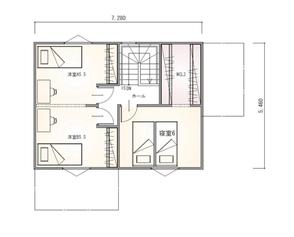
Two-Story Plan 2階建てプラン

2704

2,178万円
3LDK / 約27.04坪
2704

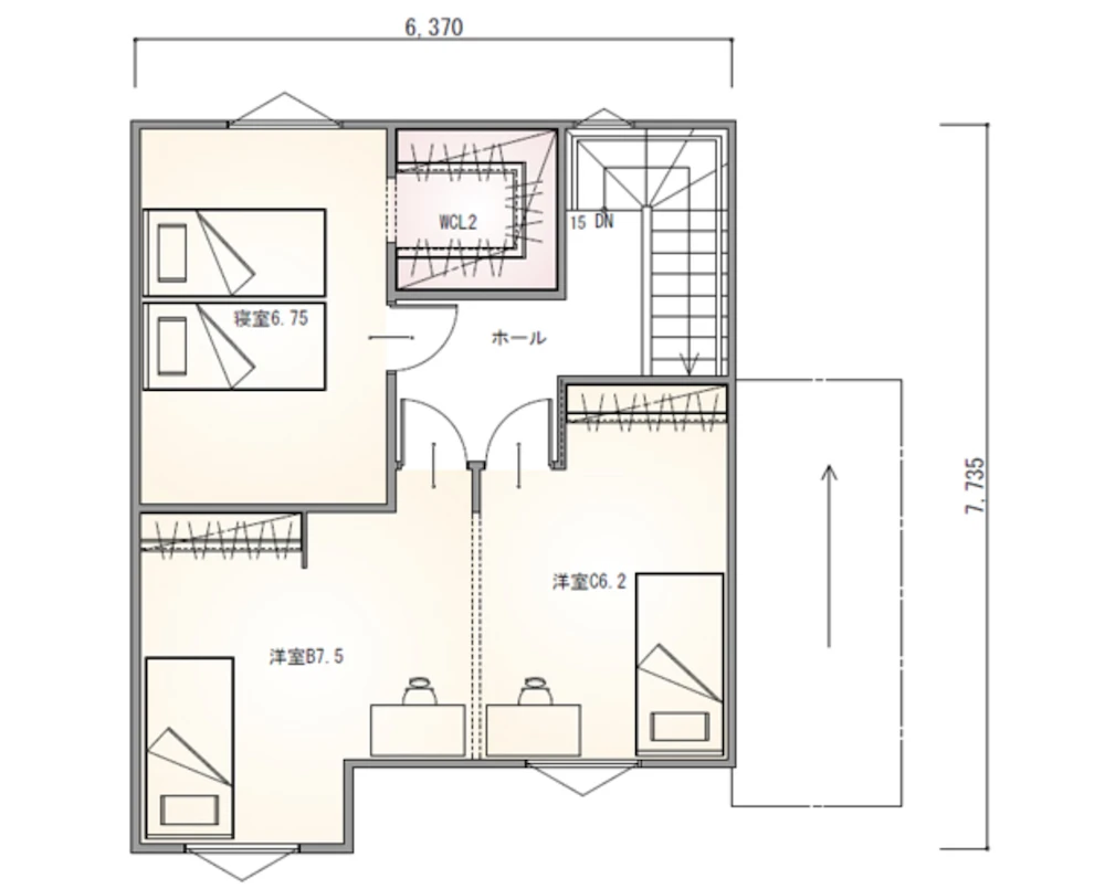
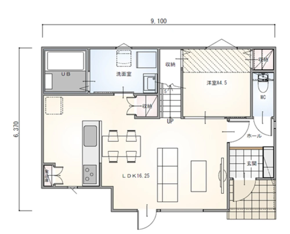
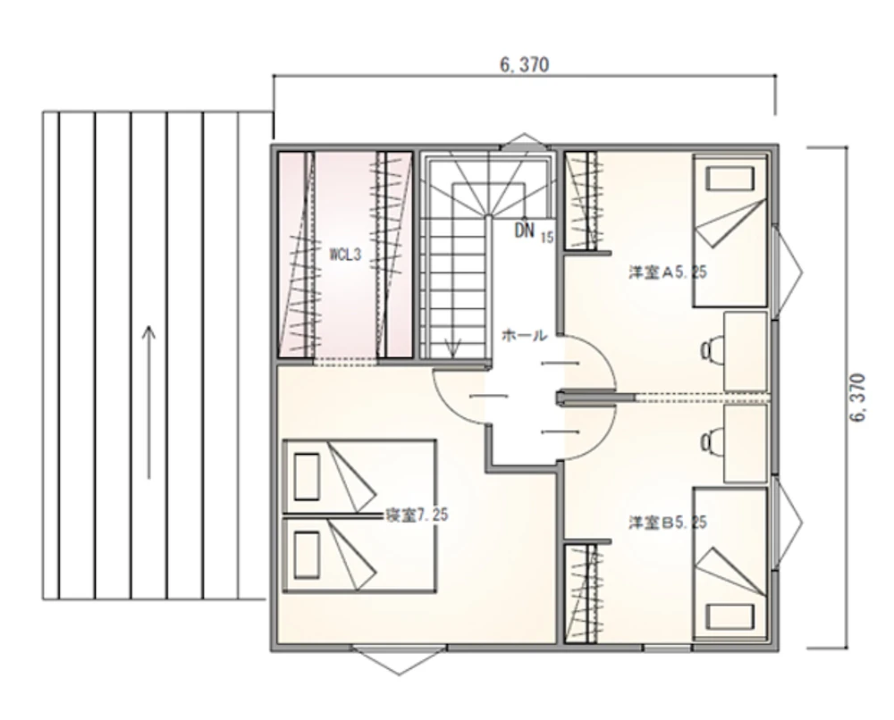
2786

2,238万円
4LDK / 約27.86坪
2786

2837

2,261万円
4LDK / 約28.37坪
2837

2855

2,255万円
4DK / 約28.55坪
2855

2862

2,291万円
4LDK / 約28.62坪
2862

2868

2,327万円
4LDK / 約28.68坪
2868

2903

2,326万円
4LDK / 約29.03坪
2903

2905a

2,295万円
4LDK / 約29.05坪_a
2905a

2905b

2,303万円
4LDK / 約29.05坪_b
2905b

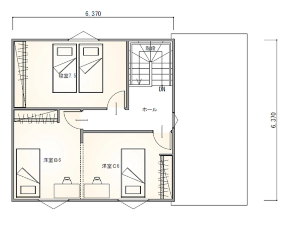
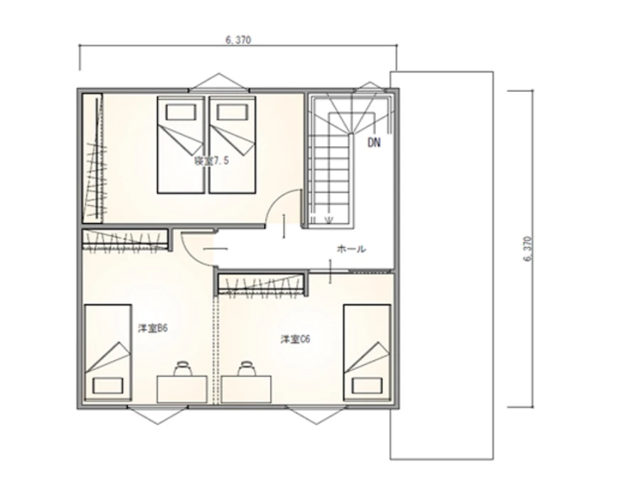
2926

2,341万円
4LDK / 約29.26坪
2926

2937

2,311万円
4LDK / 約29.37坪
2937

2943

2,262万円
4LDK / 約29.43坪
2943

3080

2,357万円
4LDK / 約30.80坪
3080
  • 予告なく建物価格を変更する場合があります。
  • 地域により別途施工費が発生します。
  • プランにオプションを含む場合、金額が異なる場合がございます。

Style 暮らしを彩る、6つのインテリアスタイル

ナチュラル

ナチュラル

ナチュラルモダン

ナチュラルモダン

シック

シック

カフェ

カフェ

ヴィンテージモダン

ヴィンテージモダン

インダストリアル

インダストリアル
ナチュラル
ナチュラルモダン
シック
カフェ
ヴィンテージモダン
インダストリアル

安心を支える、確かな基本性能

  • 木造枠組み2×4工法

    木造枠組み2×4工法

    床・壁・天井の6面で建物を支え耐震性・気密性に優れています。また耐火性にも優れ、火災保険も割引きになります。

  • 断熱性能:Ua値0.28以下<br>(断熱等級6・HEAT20 G2グレード)

    断熱性能:Ua値0.28以下
    (断熱等級6・HEAT20 G2グレード)

    断熱性能:Ua値0.34以下の住宅は冬は暖かく夏は涼しい、冷暖房費を大幅に削減できる高性能な住まいです。

  • ミライ型オール電化

    ミライ型オール電化

    当社の提唱するミライ型とは、発電した太陽光を効率よく自家消費するオール電化です。売るより使う。が、これからのスタンダードです。

  • 安心の標準長期保証

    安心の標準長期保証

    建物は10年保証。
    地盤に関しては20年保証が標準。
    また故障しやすい設備機器の10年保証もお選び頂けます。

省エネ標準仕様

  • 玄関ドア

    玄関ドア

    お好みに合わせて、シンプル・木目・重厚感等様々なデザインをお選びできます。高気密・高断熱仕様はもちろん、タグキーやスマホで施錠・解錠できるファミロックを標準仕様としております。

  • 全窓トリプルガラス

    全窓トリプルガラス

    断熱の基本はマドから。トリプルガラスは夏冬の断熱性能が体感できます。結露も激減します!

  • ダブル断熱

    ダブル断熱

    躯体は高性能グラスウールを充填。外側は押出ポリスチレン系の断熱材で躯体をすっぽりと囲みます。

  • 様々なシステムキッチン

    様々なシステムキッチン

    豊富な扉カラー。お掃除らくらくレンジフード。人口大理石トップ。たっぷり収納スライドストッカーなど充実仕様のシステムキッチン。

  • 洗面化粧台

    洗面化粧台

    広くて大容量ボウル&くるくる水栓。ハイバックガードのつなぎ目のないボウルなので、水ハネもサッと拭き取れ、カンタンお手入れ。

  • ユニットバス

    ユニットバス

    一日の疲れを癒やすリラクゼーションの空間、高断熱浴槽と水はけの良いフロアで省エネ・快適性も抜群です。壁面はマグネット小物に対応しています。

  • ワックス不要フローリング

    ワックス不要フローリング

    汚れに強いので、ワックスの上塗りなども必要なく、お手入れもサッとひと拭きで簡単です。多彩なラインナップで家具やインテリアと合わせやすく、自分好みの空間を演出することができます。

  • LED照明

    LED照明

    照明器具は全室LED照明標準。消費電力を抑えます。

  • ソーラー発電6.82kw

    ソーラー発電6.82kw

    当社太陽光パネルの保証は製品保証15年。出力保証は30年。末永く太陽光を活用できます!

  • ハイブリッドパワコン<br>(蓄電池増設可能)

    ハイブリッドパワコン
    (蓄電池増設可能)

    パワーコンディショナはハイブリットタイプなので、蓄電池にも対応できます。

  • 高性能エアコン<br>「ズバ暖(霧ヶ峰)」

    高性能エアコン
    「ズバ暖(霧ヶ峰)」

    ヒートポンプだから高効率。夏でも冬でもパワフル冷暖房。昼間なら太陽光で発電した電力も使用できます!

  • エコキュート<br>(ソーラーチャージ機能付き)

    エコキュート
    (ソーラーチャージ機能付き)

    「太陽の力を、そのままお湯に。」
    ソーラーチャージなら、昼間の余った太陽光をムダなくお風呂や給湯に活用。光熱費を賢く抑えて、エコ&快適な暮らしを実現します。