COMUNIⅡ 東2南7
価格41,000円
入居申込には子育て世代(未就学児家庭)等と所得審査があります。
帯広市の家賃補助があるから家賃が安い!
帯広市の家賃補助があるから家賃が安い!
-
物件名COMUNIⅡ
-
所在地帯広市東2条南7丁目2-2
-
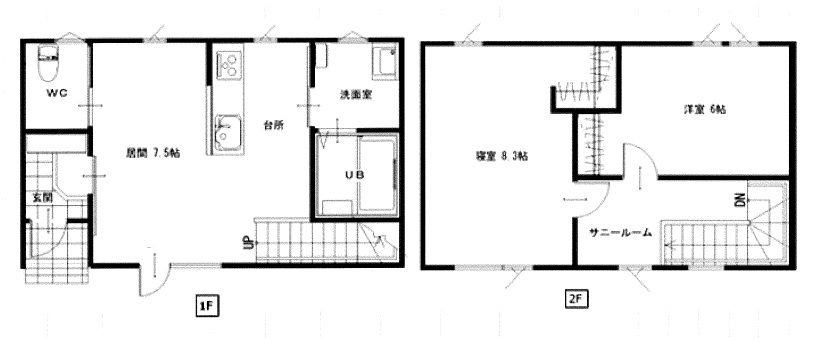
間取り2LDK(メゾネット)
-
学区柏小学校・翔陽中学校
-
築年2021年
-
専有面積約69.14㎡
-
駐車場2台可(2,000円)
-
空き部屋B号室【商談中】
-
保険火災保険 2年間 16,600円(家財・借家賠償・個人賠償)
-
保証会社 / 加入料日本セーフティー株式会社 / 保証加入料 初年度22,500円 以降毎年10,000円
-
仲介料78,100円(税込)
-
管理費 / 共益費2,000円 / なし
-
敷金 / 礼金142,000円 / なし
-
その他費用-
-
交通十勝バス 東2条6丁目前停 徒歩4分
-
設備等エアコン、シャワートイレ、ガス給湯器、ガス暖房、システムキッチン(IHコンロ)、照明器具、シャワー付洗面台、室内物干、シューズボックス、UHFアンテナ、TVモニターホン、網戸、物置、専用庭、駐輪場(2台分)
-
備考★入居時費用:285,100円
■子育て支援マンションの入居規定
①家族構成
小学校就学前の子供がいる。または妊娠している者がいる。または新婚家庭(結婚して5年以内かつ夫婦の満年齢合計が60歳未満)のいずれかの家族。
②世帯所得
おおよその目安は3人世帯で390万円・4人世帯で440万円未満。
③お申込について
入居申込書にご記入頂き、必要書類と共にFAXもしくは直接弊社へお届けください。
★ご不明な点は弊社へお問合せください。
この物件について
お問い合わせ
お問い合わせ
お問い合わせ









