Sand glass 西9南32
価格63,000円
★大規模リフォーム済み ★仲介料無料! ★日当たり良好
-
物件名Sand glass
-
所在地帯広市西9条南32丁目2-6
-
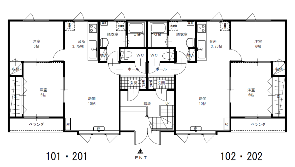
間取り2LDK
-
学区豊成小学校・南町中学校
-
築年2005年
-
専有面積約61.27㎡
-
駐車場2台可(無料)
-
空き部屋201
-
保険火災保険 2年間 22,880円(家財・借家賠償・個人賠償)
-
保証会社 / 加入料日本セーフティー株式会社 / 保証加入料 初年度31,500円 以降毎年10,000円
-
仲介料無料
-
管理費 / 共益費なし / なし
-
敷金 / 礼金家賃2ヶ月分(入居時) / なし
-
その他費用-
-
交通十勝バス 西8条34丁目停 徒歩5分
-
設備等灯油FFストーブ・エアコン・灯油ボイラー・システムキッチン・IHコンロ(3口)・シャワー付き洗面化粧台・温水洗浄トイレ・照明器具(LED)・モニター付きインターホン・カーテンレール・網戸・下駄箱
-
備考リフォーム内容
・システムキッチン交換・洗面化粧台交換・温水洗浄トイレ交換・UB交換・エアコン交換・モニター付きインターホン交換・灯油ボイラー交換・灯油FFストーブ設置・照明器具交換(LED)
この物件について
お問い合わせ
お問い合わせ
お問い合わせ




















