東6南9 貸事務所 1F 西
価格60,000円
★コンパクト事務所向け ★無料駐車場2台 ★エアコン付き
-
物件名東6南9 貸事務所
-
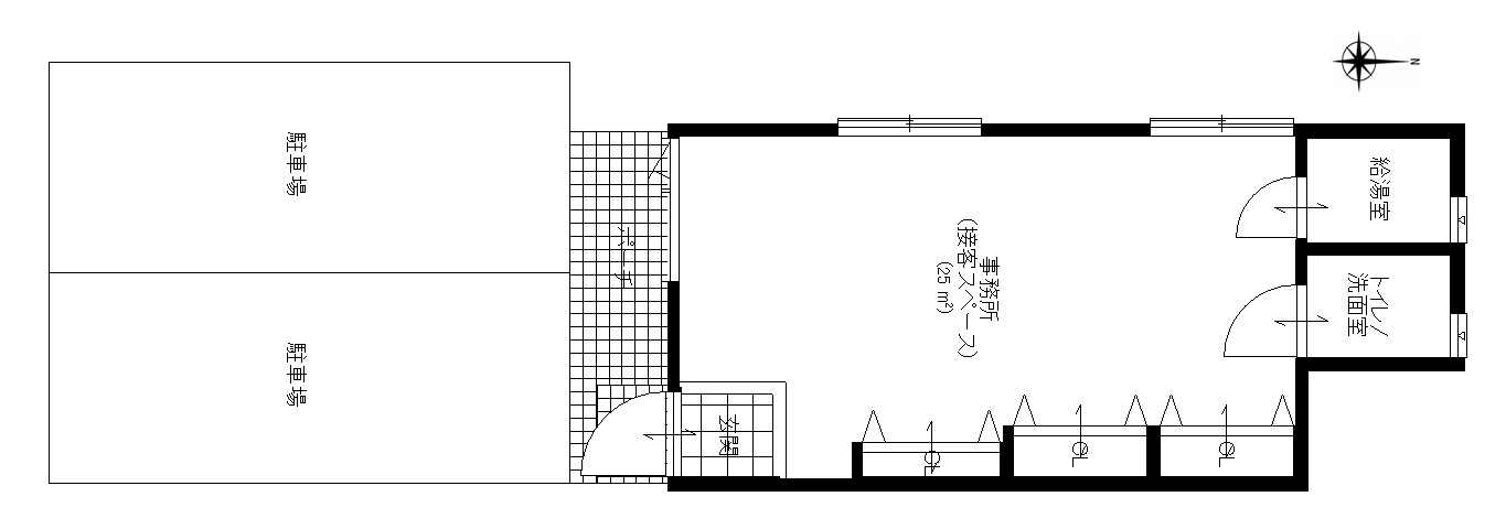
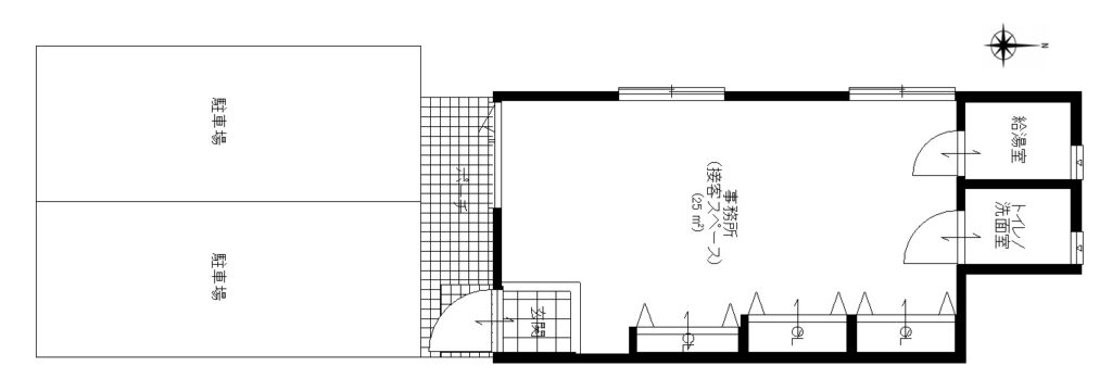
所在地帯広市東6条南9丁目18-4
-
間取り1R
-
学区東小学校・翔陽中学校
-
築年1997年
-
専有面積25㎡
-
駐車場2台可(無料)
-
空き部屋1F 西側
-
保険自己加入
-
保証会社 / 加入料日本セーフティー株式会社 / 保証加入料 初年度60,000円 以降毎年10,000円
-
仲介料33,000円(税込)
-
管理費 / 共益費なし / なし
-
敷金 / 礼金家賃2ヶ月分(入居時) / なし
-
その他費用冬季、大雪により駐車の場業者除雪依頼の場合、料金折半となります
-
交通十勝バス 東7条9丁目前停 徒歩2分
-
設備等FFストーブ、灯油タンク、洗面化粧台、WC、ロスナイ換気、エアコン、流し台、都市ガス湯沸器、都市ガスコンロ
-
備考室内ソファー、テーブル、カウンター、事務什器は設備品ではなく使える物は使用が可能です。
この物件について
お問い合わせ
お問い合わせ
お問い合わせ
