【商談中】【家具&EVコンセント プレゼント!】 芽室 東4南1 建売⑥ 【太陽光パネル付】
価格2,980万円
【ただいま決算キャンペーン中!期間中にご契約いただくと、家具、EVコンセントをプレゼント】
《光熱費が年間 ”140,000円” おトクに!》 ★先行販売 ★ミライ型オール電化 ★太陽光パネル搭載 ★小学校目の前 ★南向き日当たり良好 ★駐車場4台可
-
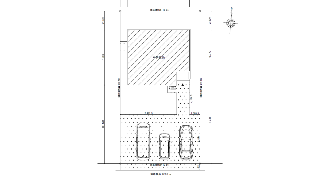
所在地河西郡芽室町東4条南1丁目6-8
-
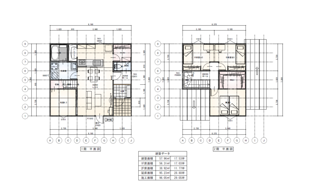
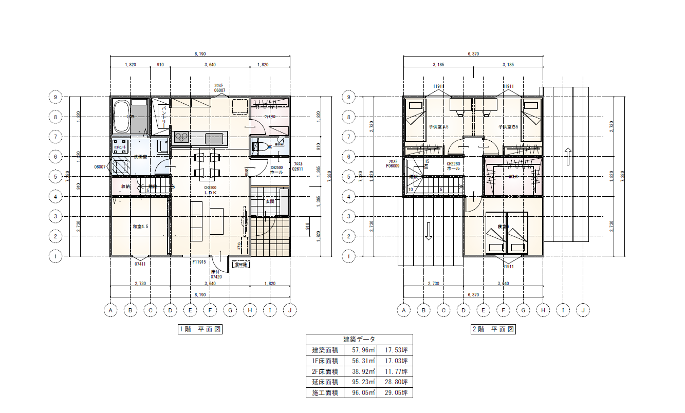
面積敷地:212.98㎡/建物:95.23㎡
-
接道南側
-
学区芽室小学校・芽室中学校
-
建蔽/容積60%/200%
-
用途/地目第一種中高層住居専用地域/宅地
-
地区計画/法令制限市街化区域/法22条区域
-
販売条件なし
-
交通十勝バス 公立芽室病院前停 徒歩7分
-
引き渡し要相談
-
現況建設中
-
設備状況上下水道・電気・LPG個別ガス・UB・温水洗浄トイレ・太陽光パネル(6.82kw)・エコキュート・LED照明付き
-
仲介料なし
-
取引態様売主
-
備考2026年3月完成予定
販売価格は土地・建物込みとなります。
記載されていない細かな仕様や補助金に関することなど、いつでもなんでもご相談ください。
-
確認申請番号第SKK20252594号






