0155-47-3000受付時間 9:00-18:00(土日祝を除く)

モデルハウス

MODEL HOUSE

【ナチュラルモダンなエコブレス】 柏林台東町|販売中

販売価格3,680万円(税込)

【価格改定!】
全館空調暖房 “エコブレス” 搭載!
光熱費 約30%削減!

オーナー募集中
URBAN BREATH
帯広市柏林台東町3丁目27

オーナー募集中

夏は涼しく、冬は暖かく。エコブレスで年中快適に

言葉だけではイメージのつきにくい全館空調暖房 “エコブレス” を実際に体験いただけるモデルハウスになります!
暖房器具の見えないエコブレスは、インテリアの邪魔をすることがありません。
燃料は施主様、地域に合わせてガス・灯油・電気どれにも対応することができます!

 来場予約はここをクリック 

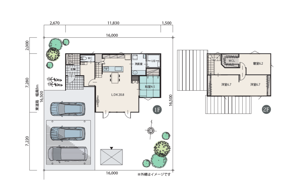
間取り図

情報

外観

ホールにはシューズクロークとパブリックな手洗い

大容量シューズクローク

縦スリットの採光窓がオシャレです

大きな窓が明るいリビングを演出します

リビングに続いた和室は家族のフリースペース

対面キッチンは家族の対話をつくります

タカラホーローシステムキッチン。どこでもマグネット対応!

備え付けの食器棚は地震でも安心。ハイカウンタータイプなので収納力もアップ!

オーダータイプの洗面台はアイカ製

UBは広々1坪。タカラスタンダードなので壁はマグネット対応、床は丈夫な磁器タイル

子供室は1部屋で利用。家族が増えたらいつでも2部屋に分離可能!

主寝室はウォークインがあります

広々ウォークインで収納力バツグン

タッチレス水栓は調理時に大活躍

お手入れラクラク人気のIHクッキング

食器洗乾燥機付で忙しいママをサポート

外観昼

BELS評価

玄関ドア機能

トリプルガラス性能

エコブレスは暖房器具がない?!

エコブレスはメンテナンスが容易!

エコブレスのしくみ

特徴
ダブル断熱+トリプルガラスで暖房費30%ダウン。※当社比
リビングには陽の光差し込む大きな窓!
タッチレス水栓・食洗機・パントリーのあるキッチン周り
木目とグレーが基調なナチュラルテイストの落ち着くインテリア

 

周辺環境
一カ所ですべて完結できるスーパーやドラッグストア、飲食店などが揃う「ドリームタウン白樺」さんがすぐそば!
小学校目の前!近隣には緑豊かな広い公園が2つも!

 

 来場予約はここをクリック 

■内装:LIXIL・WOODONE ■キッチン・UB:タカラスタンダード ■洗面:AICA ■WC:TOTO ■外部ドア:YKK ■外壁:ニチハ

※当日、熱がある・風邪の諸症状などで体調がすぐれない場合は、見学をご遠慮くださいますようお願いいたします。

見学会のご予約・お問い合わせ TEL 0155-47-3000