0155-47-3000受付時間 9:00-18:00(土日祝を除く)

土地情報・中古物件

ESTATE & USED HOUSES

中古

西15南12【売事務所】

帯広市西15条南12丁目1-45,1-46

築浅物件!事務所やクリニックなどに最適です!

価格 7,200万円

競馬場や厚生病院が近く、利便性の良い場所です。敷地の東西南の三方角地!ご見学希望お待ちしております。

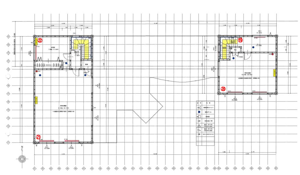
1F 平面図

2F 平面図

①玄関ホール

②ホール

③ホール

④ホール

⑤書庫

⑥西側事務所

⑦西側事務所

⑧社長室

⑨製作室

⑩応接室

⑪応接室

⑫物入・機械室

⑬男子トイレ

⑭給湯室

⑮女子トイレ

⑯書庫

⑰東側事務所

⑱東側事務所

⑲2F ホール

⑳2F 東側会議室

㉑2F 西側会議室

㉒2F 休憩室

360℃画像 操作方法

↑上記画像は360℃画像となっているため、指でドラッグすると動かすことができます。

緑の四角をクリックで各箇所360℃パノラマ画像がご覧いただけます。


外観① https://s.insta360.com/p/g1
外観② https://s.insta360.com/p/g2
外観③ https://s.insta360.com/p/g3
玄関ホール https://s.insta360.com/p/g
エントランス https://s.insta360.com/p/e
1F 廊下 https://s.insta360.com/p/ 1fr
1F 東側 事務所 https://s.insta360.com/p/s1fz
西側 事務所 https://s.insta360.com/p/w1fz
2F 東側 会議室 https://s.insta360.com/p/2fsk…​​​​​​
2F 西側 会議室 https://s.insta360.com/p/2fwk
2F 北側 休憩室 https://s.insta360.com/p/2fkk

物件名

西15南12【売事務所】

所在地

帯広市西15条南12丁目1-45,1-46

間取

接道

南東西(三方)

敷地面積

758.00m2(229.30坪)

建物面積

218.73m2(66.17坪)

築年

2016年4月

構造

木造在来工法(登記:事務所)

設備状況

上下水道・電気・給湯(都市ガス エコジョーズ)・温水パネル式セントラル暖房(都市ガス エコジョーズ)・エアコン各室・WC二か所・給湯室・屋外物置あり

駐車場

18台

用途/地目

第二種中高層住居専用地域/宅地

建蔽/容積

60%/200%

地区計画/法令制限

市街化区域/法22条区域

現況

空き

引き渡し

要相談

交通

十勝バス 西15条13丁目 停

取引態様

専任媒介

仲介料

2,442,000円

お問い合わせ TEL 0155-49-3030